One Vilamoura
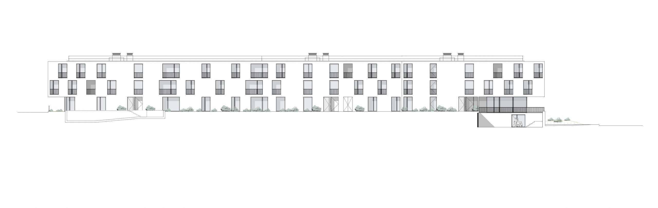
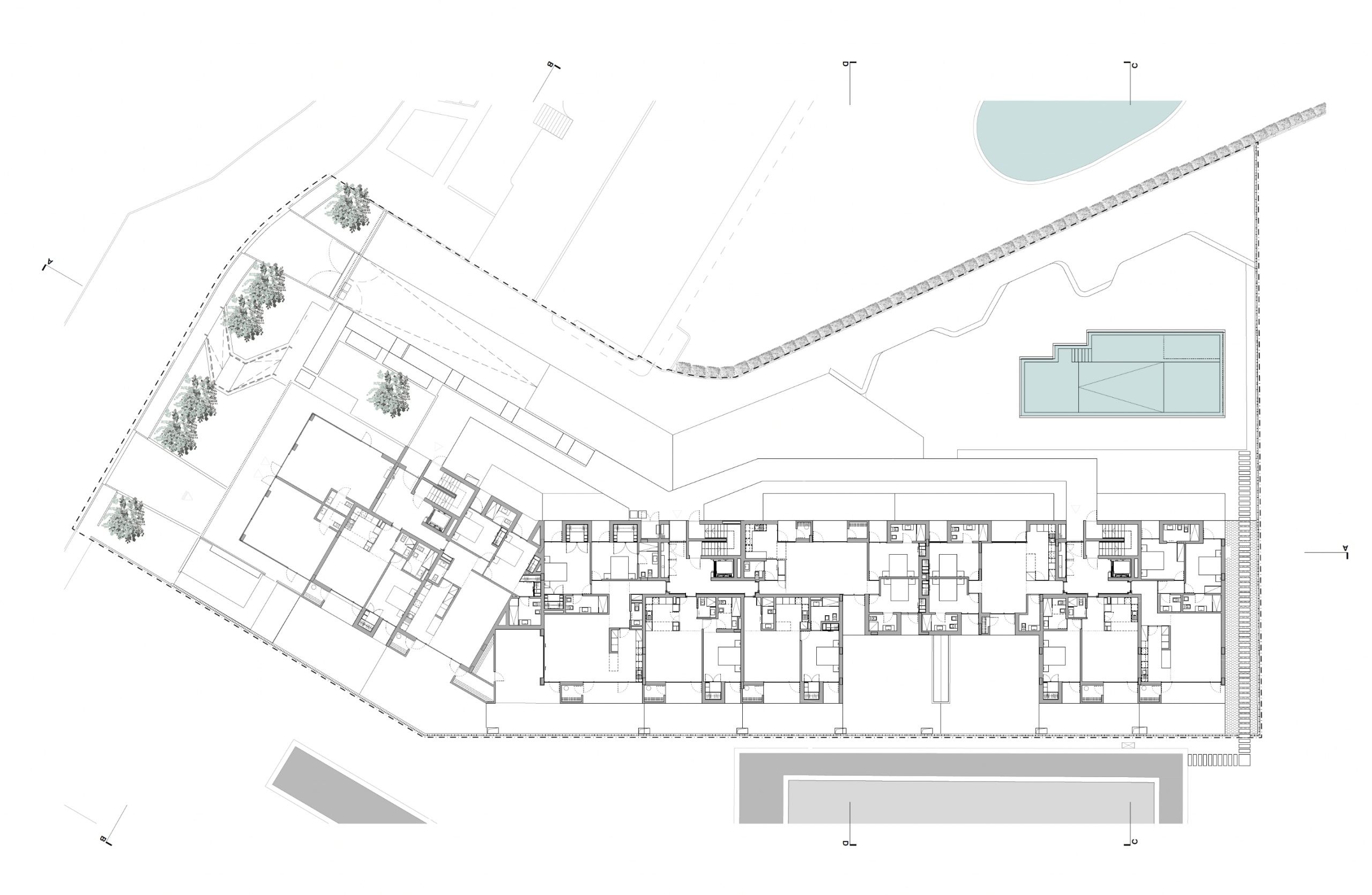
Consisting of 29 apartments that are firmly rooted in the landscape, the programme sought to keep the visual impact of the built area to a minimum. In formal terms, the design proposes a volume connected to the terrain’s morphology which is resolved in a horizontal line but reduced in scale. The architectural programme reflects an integrated image of neutrality, refinement and functionality.


In this design, which is highly committed to the natural, the recessed balconies stand out, which function as an extension of the interior spaces and, at the same time, protect the privacy of the dweller. The development also features a garden and a swimming pool to further the gentle transition between the urban and the natural fabric.














