Valrio
Localizado em Lisboa, trata-se de um complexo residencial constituído por dois edifícios distintos. A relação com a envolvente fica refletida nos alçados, dotados de largos panos de vidro enquadrados por varandas triangulares capazes de iludir um movimento acentuado e fragmentado da fachada. Trata-se de um projeto de linhas simples e caráter cosmopolita.


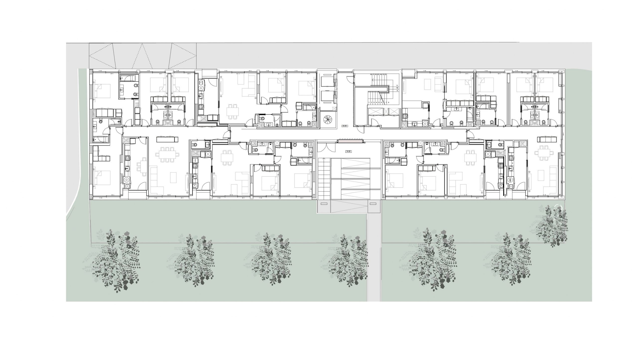
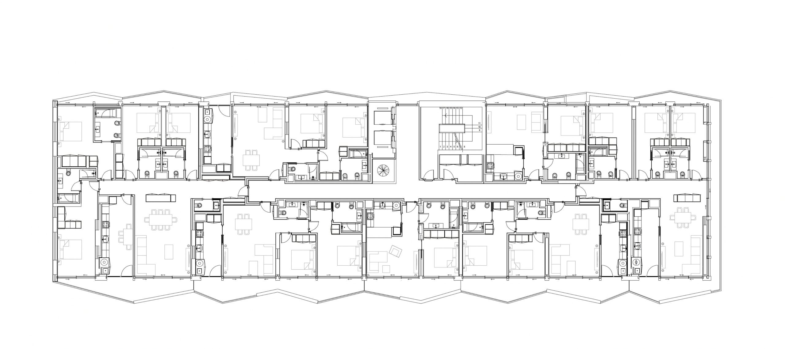
Em verticalidade, os edifícios contam oito pisos acima da cota de soleira e três pisos abaixo do solo. Em termos de usabilidade, o conjunto oferece 100 apartamentos com tipologias que variam entre os T1 e os T4. Ao nível do piso térreo, duas áreas comerciais asseguram o remate com a galeria do edifício confinante, a poente. No interior, privilegia-se a funcionalidade, a orientação solar e a otimização espacial através de reduzidas áreas de circulação e de um layout flexível, capaz de responder a diversas necessidades presentes ou futuras. O recurso ao elemento verde constituiu um imperativo do projeto: com recurso a jogos de floreiras, procurou criar-se espaços de evasão que pudessem também favorecer a privacidade relativamente ao exterior, assim como defender a separação visual entre os fogos.










